Proyectos
desplegar todos
Obra construida
2021
-
Vivienda Rafelbunyoldesplegar
-
Vivienda Alfafardesplegar
-
Pista Atletismo Massamagrelldesplegar
-
Teatro Municipal Massalavésdesplegar
-
Vivienda Mislatadesplegar
2020
-
Clínica dental Somrident Valenciadesplegar
-
Vivienda Pobla de Farnalsdesplegar
-
Vivienda Rocafortdesplegar
-
Vivienda Pobla de Farnalsdesplegar
2019
-
Reforma Albalat dels Sorellsdesplegar
-
Paseo Sumacàrcerdesplegar
2018
-
Vivienda Burjassotdesplegar
-
Vivienda Vedatdesplegar
2017
-
Blondi Plaza Españadesplegar
-
Casa Rocafortdesplegar
-
Reforma Convento Jerusaléndesplegar
-
Bicorpdesplegar
2016
-
Blondi Jesúsdesplegar
-
Reforma Calle Ermita Centro Valenciadesplegar
-
Reforma Convento Jerusaléndesplegar
-
Reforma Pedro de Valenciadesplegar
-
Vivienda Sumacárcerdesplegar
2015
-
Vestuario Rocafortdesplegar
-
Reforma Calle Alborayadesplegar
-
Reforma Blasco Ibañezdesplegar
-
Unifamiliar entre medianeras Rocafortdesplegar
2014
-
Plaza Juan Carlos I, Massalavésdesplegar
-
Rehabilitación Integral, Edificio de 3 viviendas y 1 local. Valenciadesplegar
2013
-
Palacio de los Milà, Massalavésdesplegar
-
Centro de Servicios Culturales en Massalavésdesplegar
2012
-
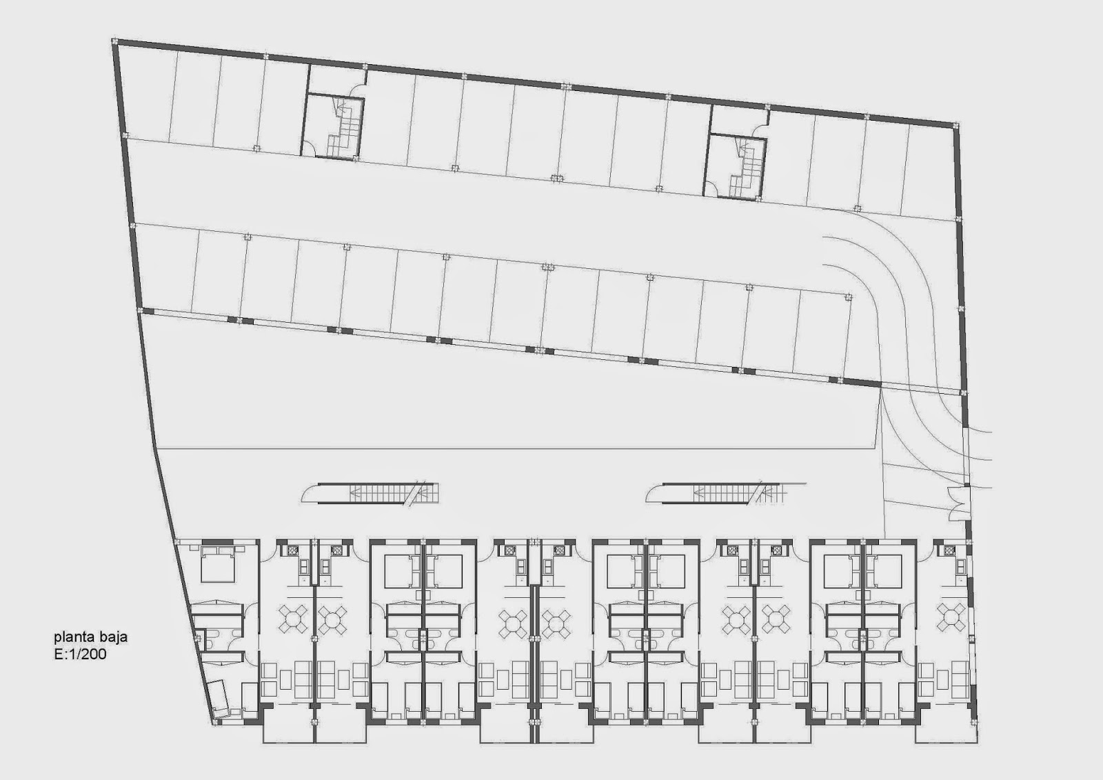
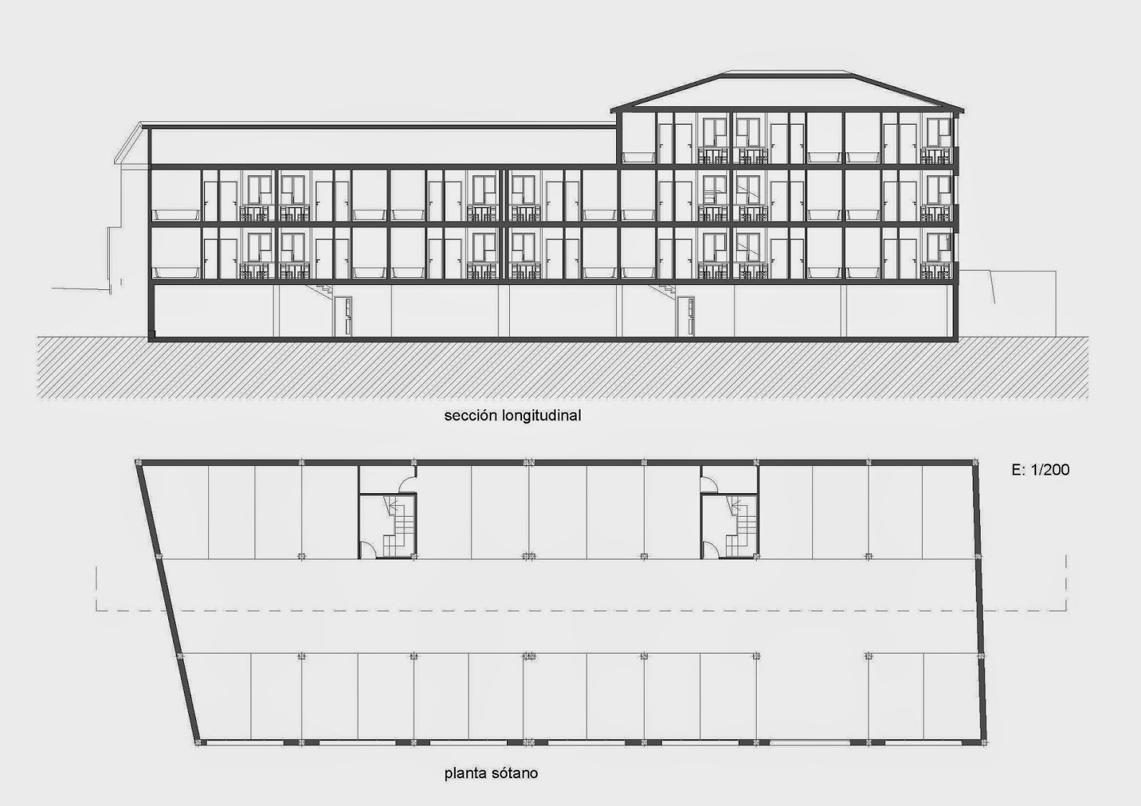
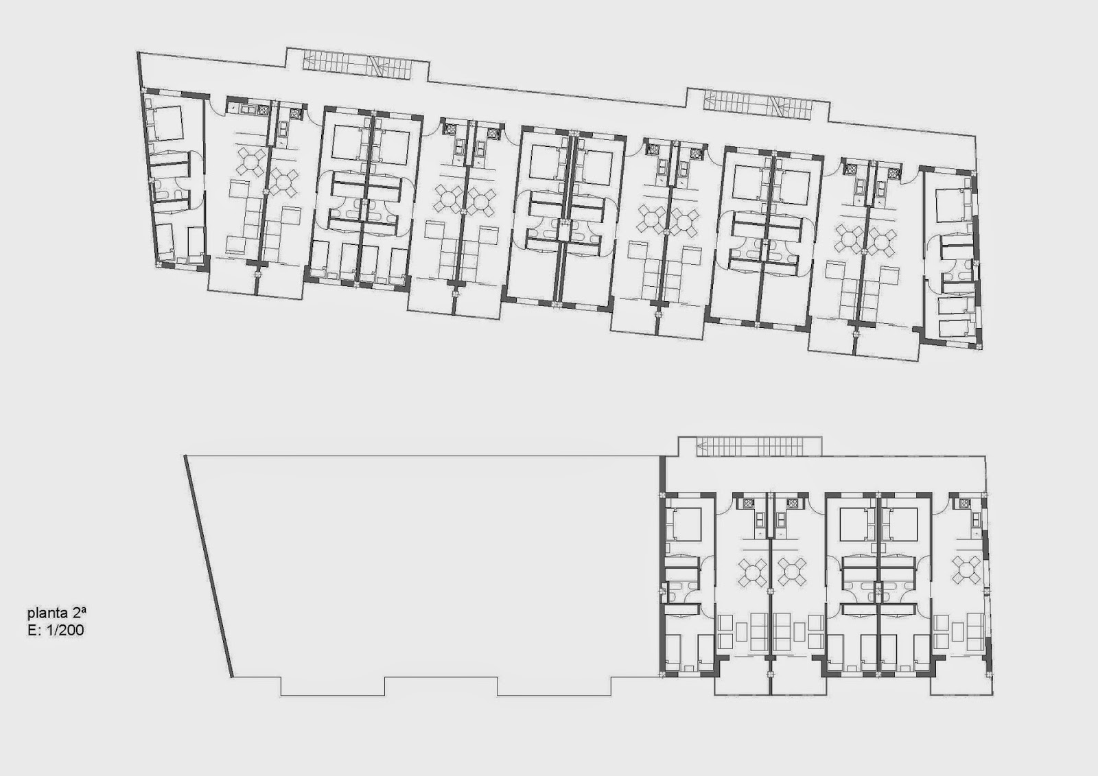
Hostal en Cuencadesplegar
-
Edifico de Viviendas en Valenciadesplegar
-
Vivienda Unifamiliar en Chóvar, Castellóndesplegar
-
Vivienda Unifamiliar en Villar del Arzobispo desplegar
-
Pistas Deportivas, Colegio Rocafortdesplegar
2011
-
Vivienda Unifamiliar en el Vedat (Torrente)desplegar
Proyectos
-
Autopromoción en Rocafortdesplegar
-
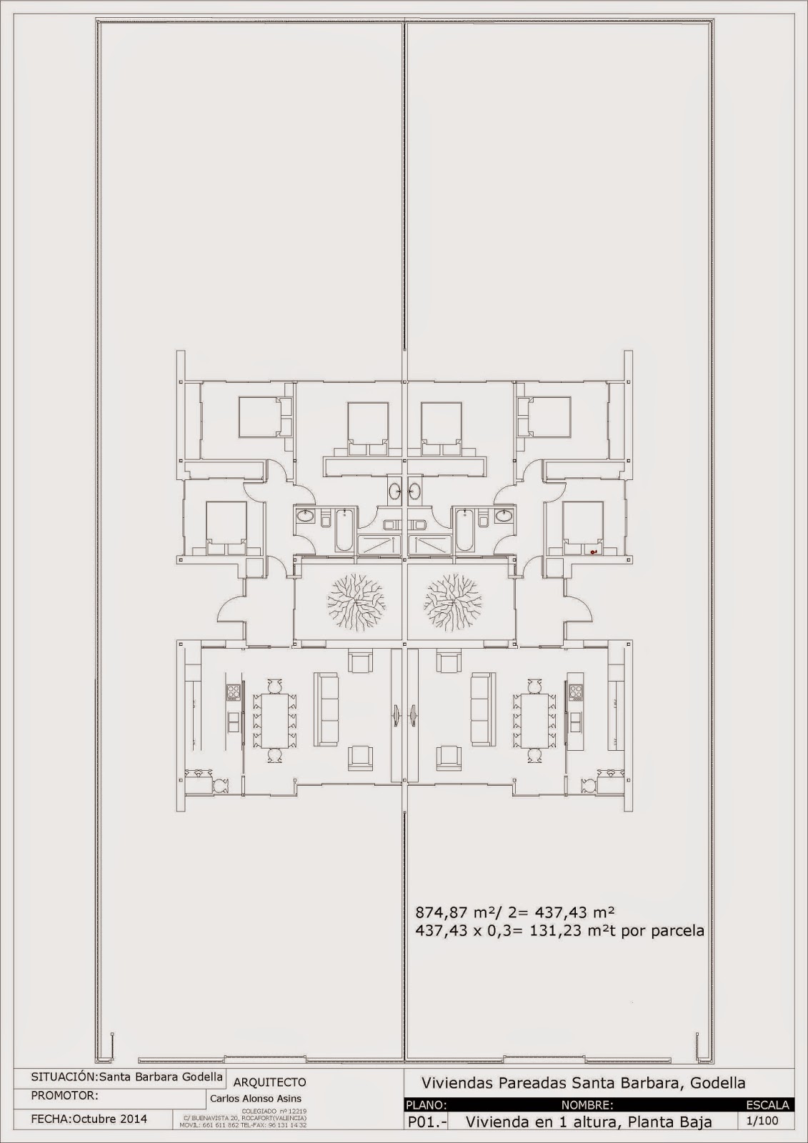
Pareados en Godelladesplegar
-
Viviendas en Villar del Arzobispodesplegar
Concursos
-
Centro Astronómico en Arcos de las Salinas, Terueldesplegar
-
Regeneración Urbana del Barrio de Barraques en Catarrojadesplegar
-
Albergue en Quesadesplegar